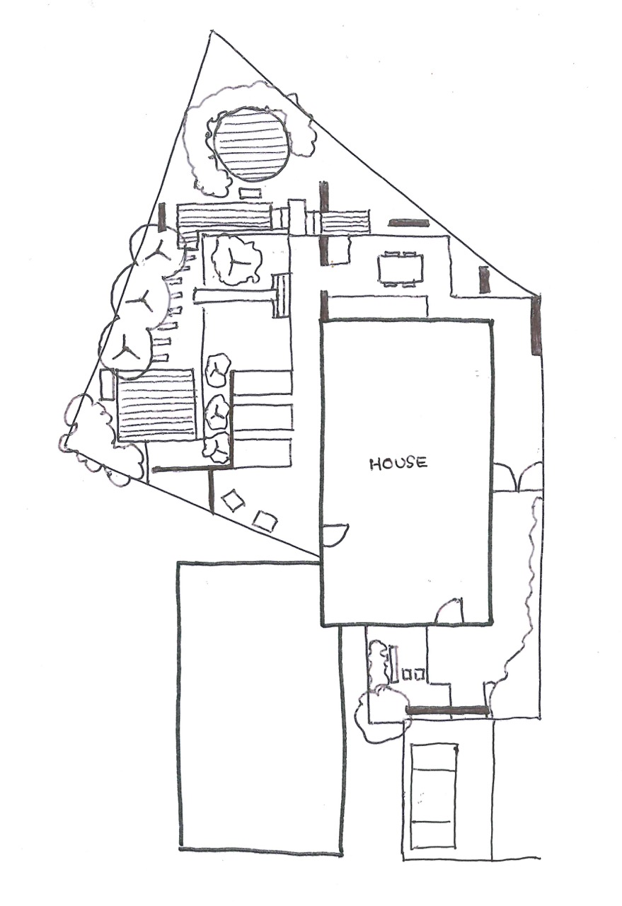
Landscape Plan. Produced by Steven Wells Previous Next Published 13 April 2016 at 879 × 1280 in Steven Wells’ Melbourne garden Share this: Email a link to a friend (Opens in new window) Email TweetShare on TumblrLike Loading...